Leave a Message

Thank you for your message. We will be in touch with you shortly.

Explore Our Properties
106 Central Park S 10E
106 Central Park S 10E
SEE ALL PHOTOS
106 Central Park S 10E
106 Central Park S 10E
Leased

106 Central Park S 10E

106 Central Park S 10E, New York City, NY 10019

$2,900/month
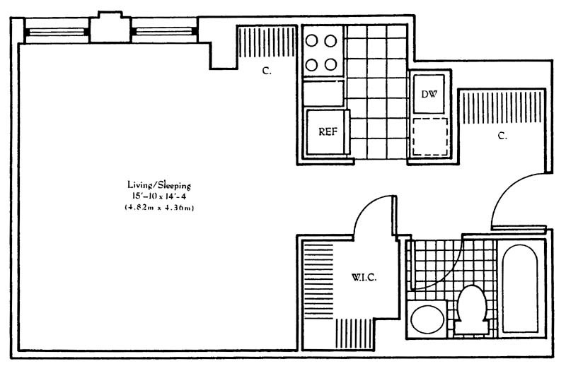
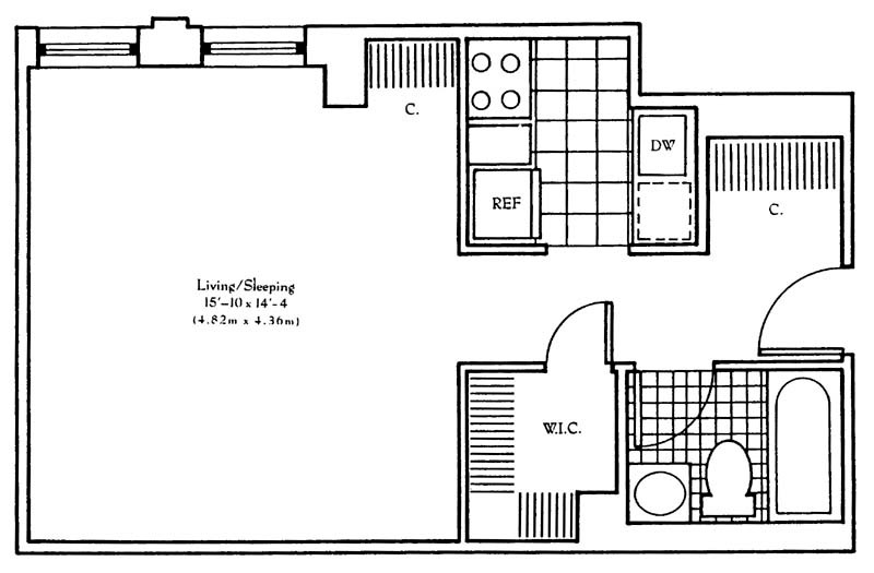
LOCATION LOCATION! This lovely studio apartment, directly across the street from Central Park, is gracious in size with excellent closet space, including a walk-in! There's a marble bathroom and a galley kitchen with stone counter tops, white subway tile back splash and stainless steel appliances. The apartment has recessed lighting and herringbone floors running throughout the space. (This is a pet building, ESA) Available immediately. Please call for an appointment. Tenants agent CYOF

One of the most elegant condominiums in the city, Trump Parc offers white-glove service with a 24-hour doorman/ concierge, garage, valet parking, and a live-in Resident Manager. House-keeping and dry cleaning services are also available for your convenience. The building is centrally located and steps away from Central Park, Columbus Circle, the Time Warner Building, Lincoln Center, Carnegie Hall, the Plaza Hotel, and all the high-end shopping on Fifth Avenue. (This is a pet building. ESA ) Tenants agent CYOF





1
full bath

405 Sq.Ft. LIVING AREA

Janine D  Ballato

Janine D Ballato

Rana H Williams

Rana H Williams

Features & Amenities

Interior

  • total bedrooms0
  • Total bathroom1
  • full bathroom1
  • Laundry room Building Inside, None
  • Flooring Hardwood
  • APPLIANCES Dishwasher, Microwave, Stainless Steel Appliance(s)

Area & Lot

  • Status Leased
  • Living Area405 Sq.Ft.
  • MLS® IDRLS11024935
  • TypeCondo
  • YEAR BUILT1930
  • Architecture StylesPrewar

Exterior

  • STORIES38
  • parkingGarage, Valet
  • HEAT TYPENone

Financial

  • Lease Price$2,900/mo

Work With Us

Keller Williams NYC are dedicated to helping you find your dream home and assisting with any selling needs you may have. Contact us today to start your home searching journey!

Follow Us on Instagram