Leave a Message

Thank you for your message. We will be in touch with you shortly.

Explore Our Properties
721 5th Avenue 61L
721 5th Avenue 61L
721 5th Avenue 61L
SEE ALL PHOTOS
721 5th Avenue 61L
721 5th Avenue 61L
721 5th Avenue 61L
Sold

721 5th Avenue 61L

721 5th Avenue 61L, New York City, NY 10022

$5,550,000
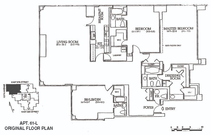
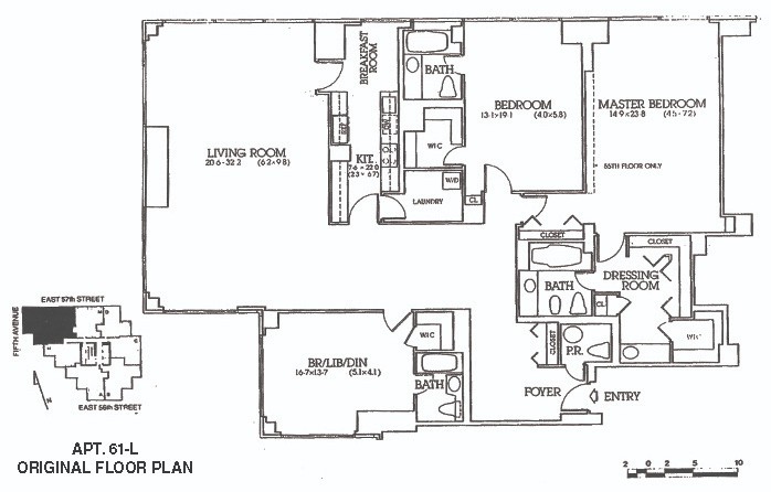
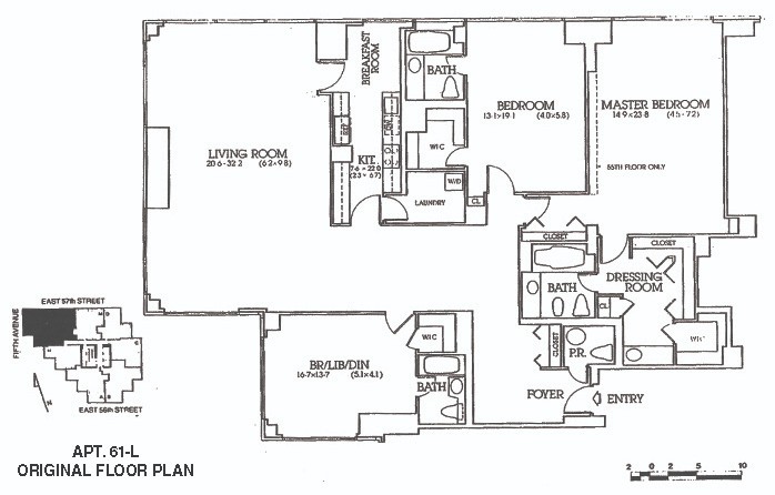
Apartment 61L in the upper reaches of Trump Tower has just been listed. The 2,510 sq. ft. L apartment, the finest three bedroom, three and one-half bathroom apartment of the building (currently reconfigured in 61L as two and one-half baths) only existed from the 55th Floor to the 63rd Floor, and many of those have now been combined with other apartments so to have an L come available at this high level is a true rarity.

Situated on the 61st floor this apartment affords spectacular panoramic views of Central Park to the north, sweeping west to the Hudson River and then south to feature views of Manhattans most iconic buildings, including the Empire State Building, The Chrysler Building and The Freedom Tower. With the backdrop of stunning views in every room, this magnificently renovated apartment is at once light, open and airy but quietly underscored by the elegance and richness of the highest quality marble, stone and wood finishes interpreted by the finest craftsmen. Floating high above Central Park and the City, the setting is without compare.

As you enter the understated foyer you are drawn forward into the subtly detailed grand corner living and entertaining space comprised of a large gallery, the living and dining room with three breathtaking exposures complimented by a wet bar with glass and enclosed cabinetry, and an open chefs kitchen with top-of-the line appliances which provides for warm, comfortable entertaining in the most elegant of settings. The kitchen includes a large pantry area with custom storage and a washer/dryer. A sumptuous half bathroom, originally and readily a full 3rd bath, is discreetly positioned off of the gallery.

Immediately adjacent to the living room and open off of the gallery through double doors is a corner den/office/bedroom with spectacular City views to the south and west. This room can be appointed to further enhance and compliment the living/entertaining area of the apartment or can be privatized to create a third bedroom. From the gallery, moving north into the bedroom wing, there is a beautifully rendered bedroom with amazing views of Central Park and its own luxurious bath with a shower overlooking Central Park!

Proceeding into the primary bedroom suite, you enter a haven of privacy and refinement with one wall of artfully customized cabinetry to accommodate a television, books and treasures. It is opposite a long wall with a king-sized bed overlooking Central Park and generous bedside tables. In front of the large picture window overlooking Central Park is a restful seating area. Just off of the primary chamber is a magnificent dressing room lined with custom cabinetry of the highest quality which leads into the very private bathroom with a large soaking tub, stall shower, double sink and private water closet, all appointed in keeping with this most magnificent setting.

Trump Tower is located at 721 Fifth Avenue in the midst of some of the most celebrated high-end shopping in the world. This famed condominium offers full-time doorman and concierge service, attended elevators, with valet, laundry and housekeeping services available to residents. Added in 2021 is a fabulous new amenity floor offering a fitness center including Peloton bikes, a circuit training space and a stretching corner, a private yoga studio, a coffee/wet bar, a residential lounge, chef's table, stadium seating movie theater, library, business center, conference rooms, children's playroom, billiards room and more.





3
beds

2
full baths

1
half bath

2,510 Sq.Ft. LIVING AREA

Rana H Williams

Rana H Williams

Features & Amenities

Interior

  • total bedrooms3
  • Total bathrooms3
  • full bathrooms2
  • half bathroom1
  • Laundry room Building Inside, In Unit
  • APPLIANCES Dryer, Washer

Area & Lot

  • Status Sold
  • Living Area2,510 Sq.Ft.
  • MLS® IDRLS10960285
  • TypeCondo
  • YEAR BUILT1983
  • View DescriptionCity

Exterior

  • parkingValet
  • HEAT TYPECentral
  • AIR CONDITIONINGCentral Air

Financial

  • Sales Price$5,550,000
  • Real Estate Tax $75,300/yr
  • Common Charges $6,029/mo

Work With Us

Keller Williams NYC are dedicated to helping you find your dream home and assisting with any selling needs you may have. Contact us today to start your home searching journey!

Follow Us on Instagram